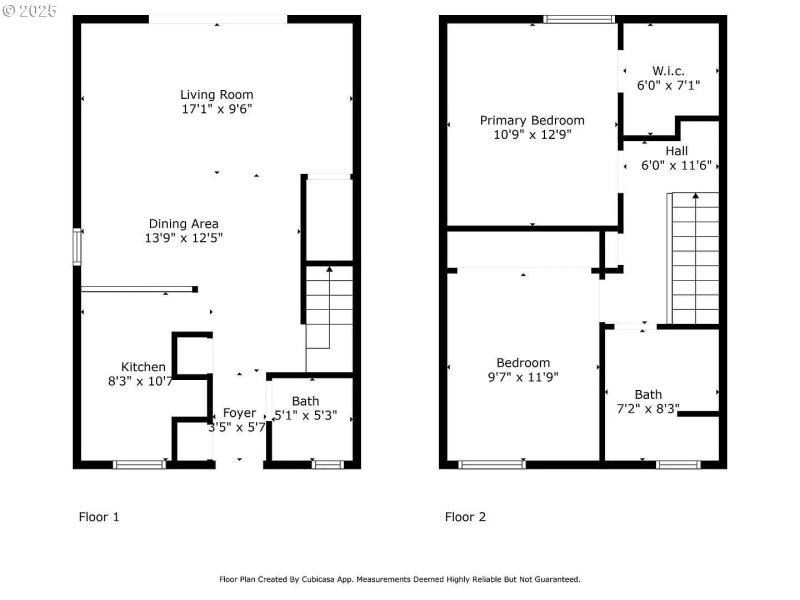
An exceptional investment opportunity in one of Portland’s most desirable and walkable neighborhoods—Sellwood-Moreland. This fully leased 5-unit multifamily property offers consistent cash flow, long-term tenants, and excellent proximity to parks, schools, shops, and transit. The property sits on a corner lot and features a strong unit mix. Four 2BR/1.5BA townhomes offer two levels, private entrances, in-unit laundry, walk-in closets, private balconies, LVT flooring (in many), celling fans, tenant storage, and dedicated carports. The fifth unit is a 1BR/1BA single-level flat with its own washer/dryer, LVT flooring throughout, storage space, and private carport—ideal for a professional tenant. All five units are currently rented to long-term tenants, minimizing vacancy and turnover. The property is well-maintained and operating at a 4.14% cap rate with future upside through rent increases or light cosmetic updates. RM1 zoning offers future development flexibility. Sellwood-Moreland is a vibrant, eclectic neighborhood with tree-lined streets, charming shops, and strong community appeal. Easy access to downtown, MAX Orange Line, and Springwater Corridor. Near Sellwood Park, Oaks Bottom Wildlife Refuge, Oaks Amusement Park, and Sellwood Riverfront Park. Just minutes from the prestigious Waverley Country Club. Close to New Seasons Market, local cafés and restaurants, Reed College, Lewis & Clark, OHSU, and top-rated public schools. Walk Score: 74 | Bike Score: 95A rare, turnkey 5-plex in one of Portland’s most established and sought-after neighborhoods—perfect for investors seeking stability, growth, and location. Fully occupied- Do not disturb tenants.
SE Corner of 17th and Linn St.
Dwelling Type: MultiFamily
Subdivision: SELLWOOD - MORELAND
Year Built: 1968, County: US
SE Corner of 17th and Linn St.
Listing is courtesy of Premiere Property Group, LLC
Sign in to your account to continue