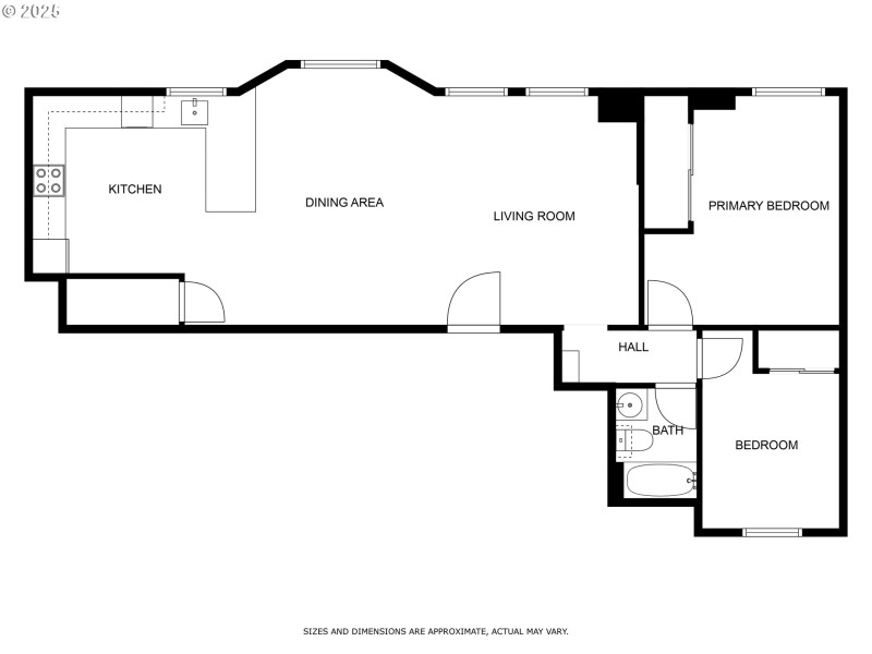
This Uptown lower level Condo boasts 1072 SF of the historic Emil Schact Craftsman 4-plex. Step from the private side entry into the welcoming living room and dining room. A generous kitchen with walk-in pantry, dishwater, new refrigerator, and breakfast bar round out the great room style living space. A short hall with built-ins leads you to the 2 bedrooms and 1 bathroom that round out the full floor plan. New floors and paint brighten the unit and additional storage can be found just steps away in the on-site laundry room. Plus a community backyard area features a courtyard great for BBQing. On street zone M parking pass may be obtained from the City of Portland for an annual fee. Located with easy access to all Nob Hill, Alphabet and 23rd neighborhoods have to offer. The numerous amenities, restaurants, and coffee shops, there is plenty to discover while living here. Nearby parks include Couch Park, Wallace Park, Northwest Raleigh Street and Wallace Park. A short walk to the NS Portland Streetcar - NS Line at the NW 22nd & Lovejoy stop. and Legacy Good Samaritan Hospital. Nearby Restaurants include Fireside, Canary, Urban Steel Kitchen, Angolo PDX, Leaky Roof Pub, Papa Haydn, Milk Glass, and St Honore Bakery Coffee shops include: Cascadia Heights, Bold coffee & books, Cathedral Coffee, Sterling Coffee, Coffee Lab, and Kaleido Coffee. Grocery Stores: Trader Joe's, New Seasons, Zupan's Market, Fred Meyer and Safeway.Scores: Walk 97 | Bike 96 | Transit 67
W Burnside, North on NW 22nd, West on NW Irving, House on Northside of street
Dwelling Type: Residential
Subdivision: NORTHWEST ALPHABET DISTRICT
Year Built: 1908, County: US
W Burnside, North on NW 22nd, West on NW Irving, House on Northside of street
Listing is courtesy of Rose City Realtors