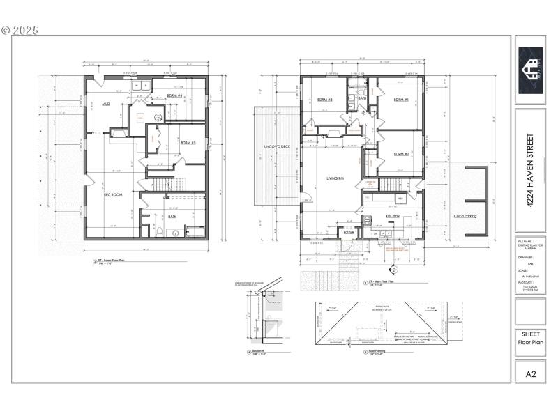
Highly sought out location- own your own slice of heaven! Complete fixer or tear down. Value is in land/lot size, LO schools, 2 lake easements. Bring your vision & imagination. In the area of 2.5 million dollars homes and up. Diamond in the rough- ready to be your forever home. Opportunity for main level living with open floor plan, primary BDRM on MN lvl. Separate access to daylight basement level. 2 access driveways from the street. Covered carports, masonry fireplaces, extensive private back yard. Call to set the viewing time or to walk the property. No lockbox on property. Owner is a licensed broker in the state of OR. Priced as is- submit your highest and best offer
Bryant to Lords to Red Fern to Haven
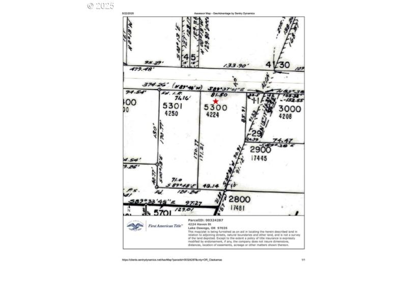
Dwelling Type: Land
Subdivision: N/A
Year Built: N/A, County: US
Bryant to Lords to Red Fern to Haven
Listing is courtesy of Kelly Right Real Estate of Portland, LLC