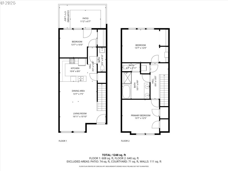
Located on a quiet drive off NE Killingsworth, this townhome-style condo offers the perfect blend of privacy, comfort, and close-in city convenience. Just blocks to the Kennedy School, Fernhill Park, and neighborhood favorites along Alberta, 42nd, Fremont, and Killingsworth. Open concept main floor with warm hardwood floors, a spacious great-room layout, and a flexible bedroom/home office with access to your own private, fenced backyard and patio. Great for relaxing after a long day. The kitchen, designed for everyday ease, offers stainless steel appliances, granite counters, tall cabinets, a pantry, and an eat-in bar plus a dining area. Upstairs, you will find two generous bedrooms with vaulted ceilings, double closets, new LVP flooring, and a full bathroom with double sinks, a deep soaking tub, separate shower, and a private water closet. Convenient front-load laundry included. With a dedicated parking space, a 1-year home warranty, a relaxed pet policy, and no rental cap, this home gives you flexibility to grow. Whether you are hosting friends, working remotely, or exploring the neighborhood, this condo fits your lifestyle. Move-in ready and waiting for you! FHA-approved. Open Sunday 10/19 Noon - 2:00 p.m.
Look for Bridgeport Village sign on north side of Killingsworth
Dwelling Type: Residential
Subdivision: CULLY
Year Built: 2009, County: US
Look for Bridgeport Village sign on north side of Killingsworth
Listing is courtesy of Premiere Property Group, LLC