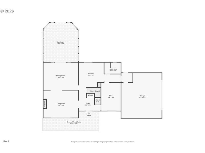
Beautiful 5-bedroom, 3-bath home set on nearly 58 acres with sweeping views in every direction — mountains, pasture, gardens, and forested land. This spacious 3,100 sq ft home features brand-new carpet, wood flooring in the living and dining rooms, and tile throughout the sunroom and kitchen. A light-filled sunroom, propane-fueled appliances, and a layout designed for both comfort and entertaining make this home truly inviting. Enjoy breathtaking scenery from the deck or relax under the covered porch while taking in the peaceful setting.The grounds are equally impressive, offering three shops, raised and fenced garden beds, a garden shed, and acres of marketable timber under taxed timber deferral. Whether you’re looking for space to work, grow, or simply unwind, this property delivers exceptional versatility and privacy. All of this just a comfortable drive to Hillsboro and Portland — opportunities like this are rare and tend to go fast.
HWY 30 N, L on St Helens Rd
Dwelling Type: Residential
Subdivision: N/A
Year Built: 1980, County: US
HWY 30 N, L on St Helens Rd
Listing is courtesy of John L. Scott
Sign in to your account to continue