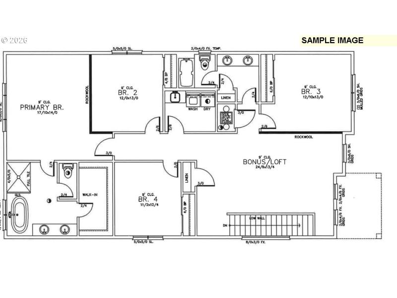
Pre-sale home. Please see sales agent for details.
SW Stafford Road x SW Frog Pond Lane x SW Windflower St
Dwelling Type: Residential
Subdivision: N/A
Year Built: 2026, County: US
SW Stafford Road x SW Frog Pond Lane x SW Windflower St
Listing is courtesy of Stone Bridge Realty, Inc
Sign in to your account to continue