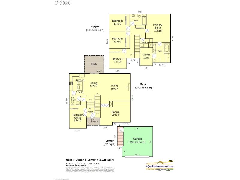
This spacious, well-designed home offers five bedrooms plus bonus across 2,738 square feet of flexible living space, all set on a generous .23-acre lot—ideal for buyers seeking space and comfort. The open, light-filled main living areas are thoughtfully designed for everyday living and effortless entertaining, while a main-floor bedroom provides a perfect option for a home office or guest space. The versatile bonus room on the main level offers endless possibilities—media room, playroom, home gym, or additional living space. The primary suite serves as a private retreat, complete with an ensuite bath and ample storage. Outside, the backyard offers plenty of room to relax, play, and personalize. Conveniently located near town amenities, renowned wineries, and outdoor recreation, this newer home delivers expansive interiors with function, style, and everyday livability.
SW Hill Road to SW Redmond Hill Road
Dwelling Type: Residential
Subdivision: N/A
Year Built: 2018, County: US
SW Hill Road to SW Redmond Hill Road
Listing is courtesy of Real Broker
Sign in to your account to continue