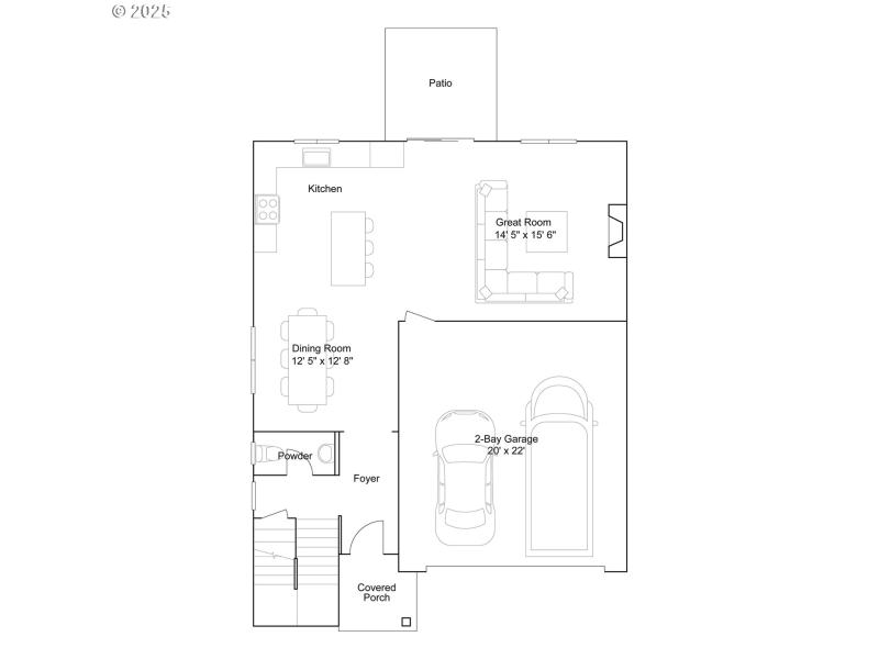
Welcome to Dutch Canyon by Lennar. This new construction home is located in charming Scappoose, with easy access to Sauvie Island, hiking, and more outdoor adventure, plus local food trucks and shopping just minutes away. The Hillsdale plan blends function and style with a welcoming two-story layout that connects the great room, kitchen, and dining area, opening to a back patio ideal for indoor-outdoor living. Upstairs, a spacious loft separates the three bedrooms, including a private primary suite with an ensuite featuring a separate tub and shower, dual sinks, and a walk-in closet. Interior highlights include quartz countertops, shaker-style cabinets, LVP (luxury vinyl plank) flooring in the kitchen and entryway, LVT (luxury vinyl tile) flooring in the baths, two-tone interior paint, full landscaping, fencing, and a fireplace with a floating mantle. This home also includes central air conditioning, a refrigerator, washer and dryer, and blinds—all at no extra cost! Located on homesite 134, this home is expected to be complete in March 2026. Rendering is artist conception only. Photos are of a similar home, features and finishes will vary.
From Hwy30 West on Bonneville Dr, Right on Old Portland Rd to Callahan Rd Welcome Home Ctr on Corner
Dwelling Type: Residential
Subdivision: DUTCH CANYON
Year Built: 2026, County: US
From Hwy30 West on Bonneville Dr, Right on Old Portland Rd to Callahan Rd Welcome Home Ctr on Corner
Listing is courtesy of Lennar Sales Corp
Sign in to your account to continue