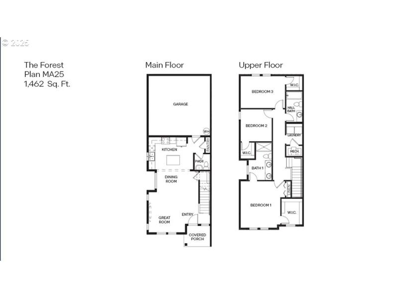
End unit new construction townhome in Gresham! MOVE-IN READY! This 1,462 square foot Forest floor plan is a lovely two-story townhome with 3 bedrooms, 2.5 bathrooms, and an attached 2 car garage. Upon entering there is a great room with a fireplace that is connected to the dining room and a kitchen. There is extended flooring on the main, making this space perfect for hosting. Come together for mealtimes at the island with a breakfast bar. Match any decorating style with solid quartz countertops, shaker-style cabinets, and stainless-steel appliances, creating a dashing elegance. The primary bedroom boasts ample amount of space along with a spacious walk-in closet, double vanity sink, walk-in shower, and an extra linen closet. The second and third bedroom both have walk-in closets, making it a great location to store extra clothes. Open Wednesday-Monday 9:30am AM – 4:30 PM and Tuesdays by appointment only. Receive a closing cost credit with use of builder’s preferred lender, reach out for more details. Photos are representative of plan only and finishes may vary as built. Come visit Terrace at Pleasant Valley and claim your Forest today! Terrace at Pleasant Valley is just minutes from the highway for easy access into the Portland metro area, and outstanding outdoor activities like Powell Butte and Happy Valley Nature Park.
From SE 190th, West on Giese Rd, Left on SW Thomas Ave to Sales Office / Model Home
Dwelling Type: Residential
Subdivision: TERRACE AT PLEASANT VALLEY
Year Built: 2026, County: US
From SE 190th, West on Giese Rd, Left on SW Thomas Ave to Sales Office / Model Home
Listing is courtesy of D. R. Horton, Inc Portland
Sign in to your account to continue