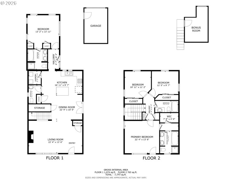
Short Term Rental. Income Producing Property. Harder and harder to find all up and down the Oregon Coast. But in the coveted Olivia Beach neighborhood of Lincoln City, a rental permit is just one of the many perks of this beautiful Cape Cod home. Sold turn-key and fully furnished! Zoned VR makes this home eligible for Short Term Rental or keep it yourself for family and friends! This property is a must consider for anyone seeking an income property or 1031 exchange. Property is currently permitted for 4 off street cars and 13 guest occupancy. Located on Olivia Beach Park also makes this an especially desirable rental in Olivia Beach. Ensuite Primary Bedroom on the main floor and a second Ensuite Primary Bedroom on the upper floor with a private balcony overlooking the park. Enter the main floor into the living room which seamlessly flows into a dining area and open kitchen with a grand island with bar seating. Carriage house over the garage makes a great rec room or use for your personal items. Semi private Hot-tub just outside of the main level Ensuite Primary Bedroom! Buyer due diligence for Short Term Rental license process.
SW Anemone Ave in Olivia Beach
Dwelling Type: Residential
Subdivision: OLIVIA BEACH
Year Built: 2007, County: US
SW Anemone Ave in Olivia Beach
Listing is courtesy of Living Room Realty
Sign in to your account to continue