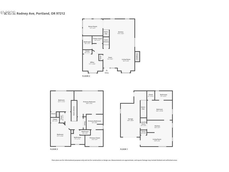
Classic Craftsman style meets modern flexibility in this like-new home in the heart of NE Portland. This is urban Portland living at its best. The main residence offers 4 bedrooms and 2.5 baths with a bright, open layout featuring hardwood floors, a fireplace, and a designer kitchen with custom cabinetry, quartz countertops, farmhouse sink, and stainless steel appliances. Relax in the bonus enclosed sunroom just off the kitchen. Upstairs, the spacious primary suite feels like a retreat with a spa-inspired shower and generous walk-in closet. On the street level, a fully finished 1-bedroom, 1-bath ADU with it's own address designation unit B. It includes its own full kitchen and washer/dryer—creating the perfect setup for guests, multi-generational living, or a long-term rental that can help offset the mortgage.Step outside and you’re moments from some of Portland’s best restaurants, coffee shops, and boutiques along N Williams and Mississippi Avenue. With a Walk Score of 94 and Bike Score of 100, daily errands, dining, and nightlife are all within easy reach.
N Williams/NE Fremont St
Dwelling Type: Residential
Subdivision: ALBINA
Year Built: 2018, County: US
N Williams/NE Fremont St
Listing is courtesy of Real Broker
Sign in to your account to continue