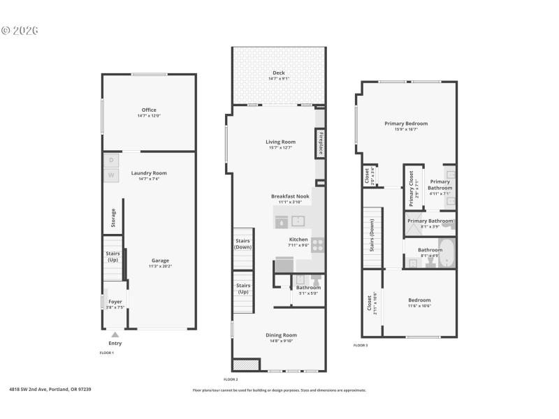
Let’s be real… the kitchen makes the house, and this one absolutely delivers. Fully remodeled with expansive counters, new appliances, sleek finishes, and more storage than you’ll know what to do with. Both perfect for entertaining during cocktail hour and practical for meal prep, this kitchen is built to show off. This light-filled end-unit townhome brings it all: 3 bedrooms, 2.5 baths and thoughtful updates throughout. High ceilings, newer flooring, a cozy gas fireplace, and oversized windows make the living space feel bright, open and easy to love. Step out to your private deck with a retractable Sunbrella awning and enjoy views of a wooded oasis, but be minutes from downtown, OHSU, and John’s Landing. Easy access to Beaverton, the East Side, and central Portland. Tucked away, yet walkable to coffee shops, restaurants, and Willamette River trails. Meticulously maintained with modern and major upgrades already done: Nest thermostat (2025), full PEX re-pipe (2024), kitchen appliances (2023), furnace + AC (2023), exterior repaint (2022), water heater (2021), 50-year roof (2013), and backyard expansion. Low HOA, deep garage, storage galore. This home isn’t just pretty, it’s practical and it’s ready for you! [Home Energy Score = 8. HES Report at https://rpt.greenbuildingregistry.com/hes/OR10045592]
CORBETT TO SEYMOUR TO SLAVIN TO 2ND AVE/CT IN POPULAR TERWILLIGER POINTE
Dwelling Type: Residential
Subdivision: N/A
Year Built: 1999, County: US
CORBETT TO SEYMOUR TO SLAVIN TO 2ND AVE/CT IN POPULAR TERWILLIGER POINTE
Listing is courtesy of Redfin
Sign in to your account to continue