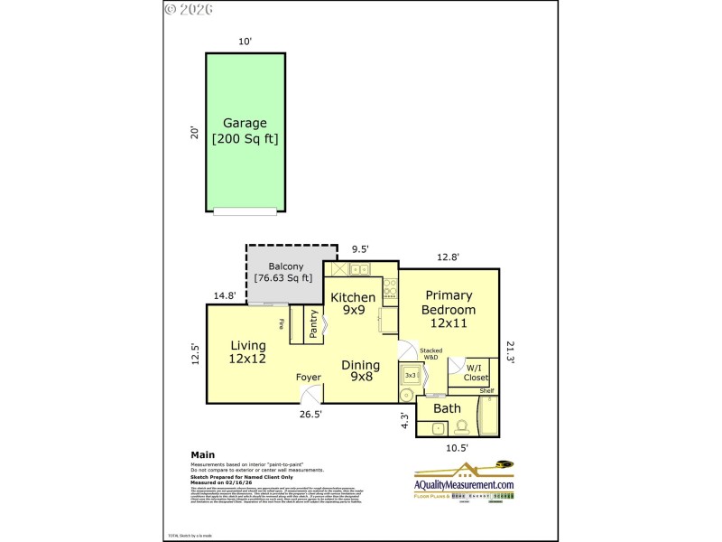
This top floor condo gem in a incredible location comes with a 200 SQFT 1 car garage in the highly desirable Cedar Mill neighborhood. No neighbors above and a functional floor plan that features a large living space, vaulted ceilings, a private deck, open kitchen and dining, electric fireplace and a spacious ensuite bedroom with walk-in closet. This unit is move in ready with new interior paint, a new water heater, new carpet, double pane vinyl windows, and efficient mini split heating and cooling. Only minutes away from shopping, restaurants, the Oregon Zoo, Washington Park, Cedar Hills Crossings, Nike, Intel, downtown Portland, Highway 26, and so much more.
Cornell or Barnes to 118th to Holly Springs. Round-about to Lost Springs
Dwelling Type: Residential
Subdivision: N/A
Year Built: 2008, County: US
Cornell or Barnes to 118th to Holly Springs. Round-about to Lost Springs
Listing is courtesy of Cascade Hasson Sotheby's International Realty
Sign in to your account to continue