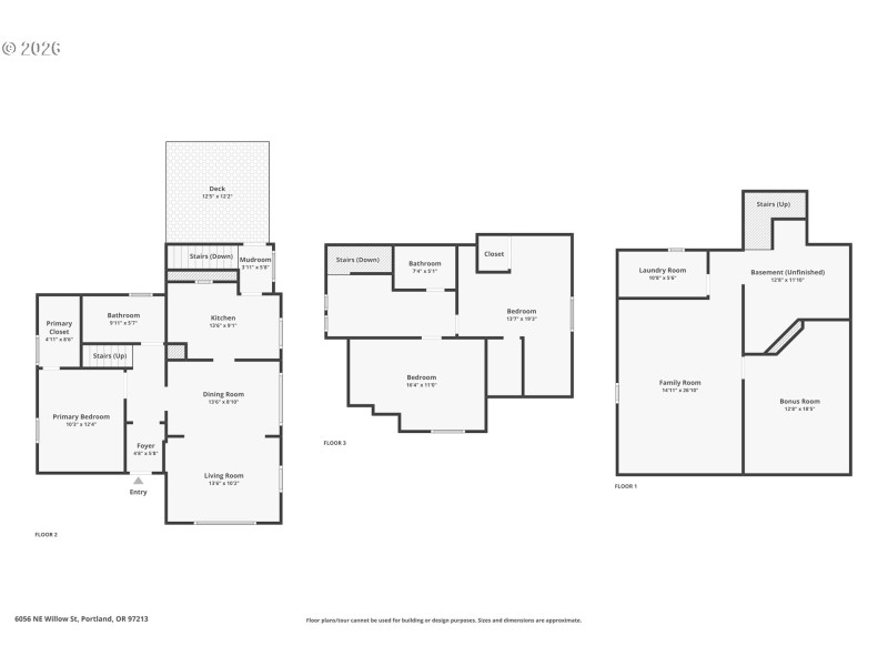
Located in NE Portland, this classic Portland bungalow offers 2,380 square feet of flexible living space with thoughtful updates throughout and quick on and off access to major routes while enjoying a residential neighborhood setting. The main level features tall ceilings, a comfortable living room, and a well sized kitchen with a newer stove, refrigerator, and updated finishes. The primary bedroom includes a generous closet and an improved bathroom with an updated tub and shower can be found on the main floor. Downstairs, the basement provides a large bonus room, newer flooring, and additional finished areas that allow for a possible fourth bedroom, office, or hobby space, along with a laundry area with newer washer and dryer. Recent improvements include fresh interior paint, a new central air furnace installed December 2024, a new garbage disposal, and updated ceiling fans. Outside, the backyard offers space to relax or garden, a storage shed, and a driveway with parking for two to three cars. This home blends original bungalow character with meaningful updates and versatile living areas. [Home Energy Score = 3. HES Report at https://rpt.greenbuildingregistry.com/hes/OR10194479]
NE Glisan, North on 60th, Right on Willow
Dwelling Type: Residential
Subdivision: N/A
Year Built: 1915, County: US
NE Glisan, North on 60th, Right on Willow
Listing is courtesy of Robbins Realty Group
Sign in to your account to continue