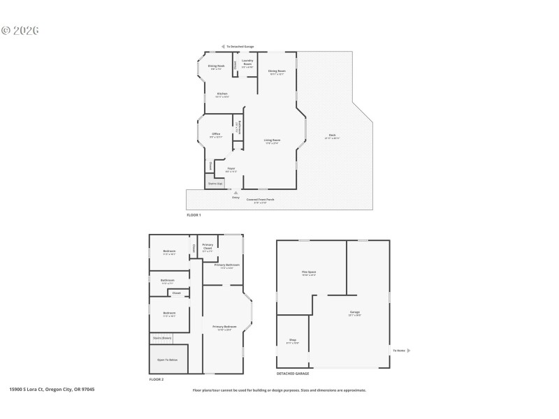
Tucked behind a private gated drive, this beautifully updated farmhouse on 16+ acers offers the perfect blend of charm, comfort, and peaceful country living. Bathed in natural light and immaculately cared for, the home is truly move-in ready and surrounded by a gorgeous, park-like setting with lovely views from every window.A welcoming wrap-around covered porch invites you to relax and take in the serene surroundings from the large backyard deck.Inside, the thoughtfully designed floor plan features a stunning gourmet kitchen and a main-level office with its own half bath—ideal for working from home or creative pursuits. Upstairs, you’ll find three inviting bedrooms, including two baths with custom tile work, one of which has a luxurious freestanding soaking tub.The detached two-car garage includes a workshop plus a fully finished flex space (20 x 21 feet) perfect for an art studio, home gym, or hobby room. Outside, the property continues to delight with raised garden beds and three charming outbuildings—a utility shed, chicken coop, and sheep shed—making it ideal for gardening or small hobby farming.The trickle of Holcomb Creek makes a charming addition, and a sweet nearby neighborhood offering easy access to amenities, this special home feels like a private oasis while still being wonderfully convenient.
HWY 213 TO HOLCOMB, SANDLEWOODRT TO LORA CT
Dwelling Type: Residential
Subdivision: N/A
Year Built: 1993, County: US
HWY 213 TO HOLCOMB, SANDLEWOODRT TO LORA CT
Listing is courtesy of Keller Williams Realty Professionals
Sign in to your account to continue