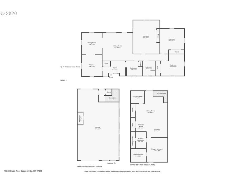
**reviewing offers 5pm on Monday 3/2** Charming Home with Income-Generating ADU, Huge Shop, and Room for All Your Toys!Looking for space, flexibility, and extra income potential? This charming property truly has it all! The main house. 1567 SqFt features 3 large bedrooms and 1.5 baths, plus a comfortable living room and a formal dining room perfect for family dinners or gatherings with friends. Located on a .48-acre corner lot, this property offers endless possibilities. There’s a massive 24x42 shop with garage doors on both sides—perfect for projects, storage, or hobbies. Above the shop, you’ll find a 1,008 sqft ADU, 1 bedroom and 1 bathroom, ideal for guests, extended family, or rental income, complete with a new furnace and AC (installed in 2024) and a tankless hot water heater.Bring your RV, boat, or any other toys—there’s plenty of parking thanks to the spacious driveway and carport, plus designated RV parking. A large storage shed adds even more convenience. This property offers the perfect blend of comfort, function, and opportunity—all on one beautiful lot!
Forsythe Rd to Swan Ave
Dwelling Type: Residential
Subdivision: N/A
Year Built: 1947, County: US
Forsythe Rd to Swan Ave
Listing is courtesy of Premiere Property Group, LLC
Sign in to your account to continue