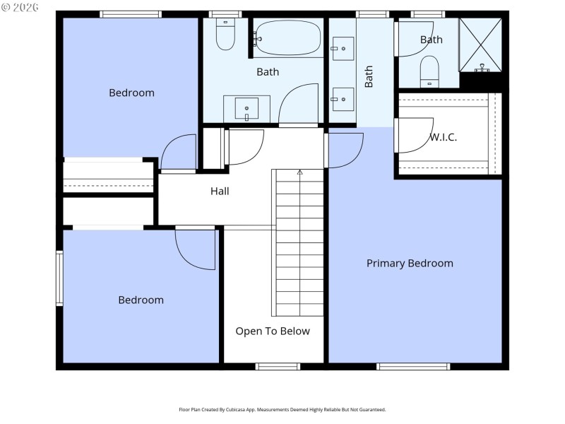
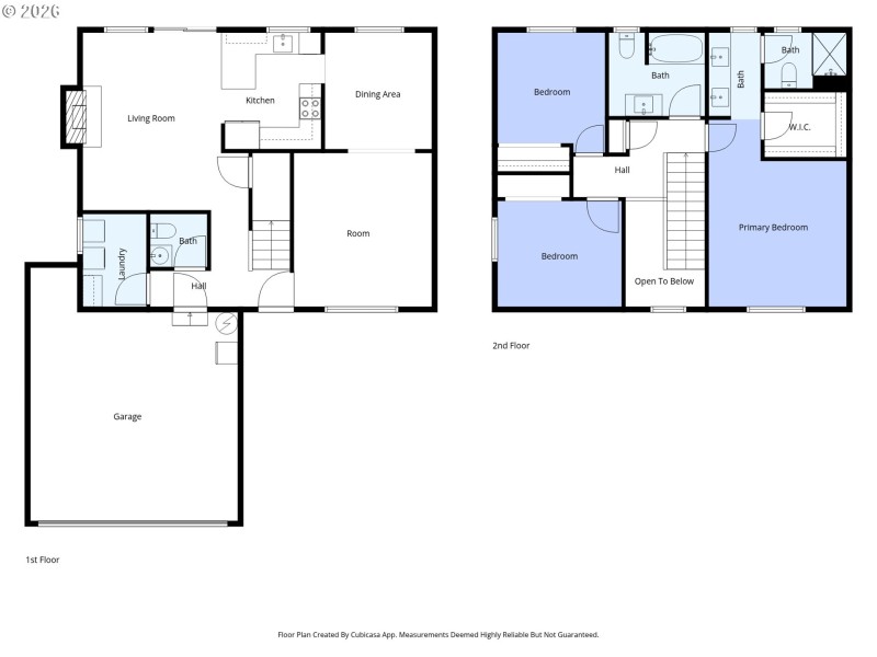
This two-story home offers 1,629 square feet of living space. The MAIN LEVEL features easy-care laminate flooring throughout the primary living areas, including a family room centered around a fireplace and equipped with a ceiling fan. The updated kitchen includes several recent improvements, such as freshly painted cabinets, new solid-surface countertops, and tile backsplash. Functional updates within the last two years include a new dishwasher and refrigerator, as well as fresh paint in the kitchen and bathroom. UPSTAIRS - All three bedrooms are located on the carpeted upper level. The primary bedroom has a ceiling fan. For year-round climate control, the home is equipped with a forced air furnace and central air conditioning. OUTDOOR features include a covered front porch and a fully fenced backyard. The rear of the home offers a large, covered deck, a spacious lawn, and a storage shed for tools or equipment. A two-car garage with an automatic opener provides internal parking and additional storage options. The property is located in the Evergreen Public Schools district and is within 4.5 miles of several local parks, including Burnt Bridge Creek School Park, Hanna Acres Park, Clearmeadows Park, and Heritage Park.
NE 48th Str & NE 151st Ave
Dwelling Type: Residential
Subdivision: N/A
Year Built: 1993, County: US
NE 48th Str & NE 151st Ave
Listing is courtesy of Realty One Group Prestige
Sign in to your account to continue