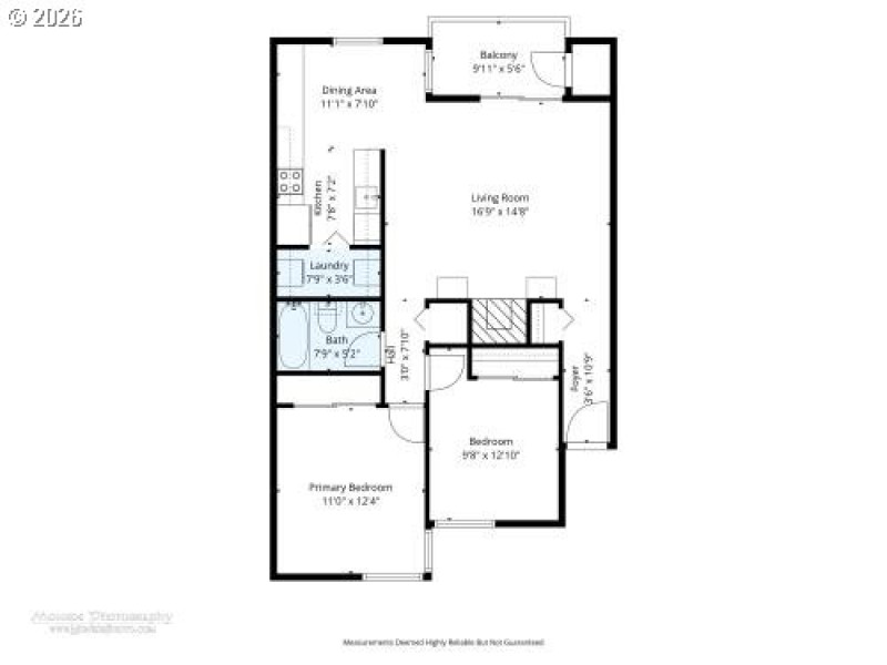
Step into this stylish, move-in-ready Tualatin condo where nearly everything has been refreshed—newer roof, siding, windows, & exterior paint give the whole building a crisp, modern feel before you even walk inside. The sunny entryway welcomes you with brand-new luxury vinyl flooring & a convenient coat closet to keep life tidy. From there, the home opens into a spacious great-room style living area, anchored by a charming wood-burning fireplace with a pretty white mantel and built-in shelving—perfect for your books, art & personal touches. A large sliding glass door leads to your private balcony, ideal for morning coffee, evening unwinding & extra storage for bikes or weekend adventure gear. The fully remodeled kitchen is a showstopper, featuring newer stainless steel appliances, granite countertops, fresh cabinetry, updated lighting, and matching luxury vinyl flooring. The adjacent dining area shines with a built-in buffet and a picture window that brings the outdoors in.Down the hall, the sun-filled primary bedroom offers corner windows and a generous closet. The second bedroom also features new flooring and a great closet—perfect for guests, a home office, or creative space. The remodeled bathroom includes a new vanity with extra storage, updated lighting, new flooring, and a clean shower-tub combo. Even the laundry room has been refreshed with built-in storage and new flooring. Outside your door, enjoy walking trails, a sparkling summer pool, and a community gazebo. The location is unbeatable: a short stroll to a donut shop, a retro 60’s diner, a convenience store, & a western-themed bar. Downtown Tualatin is just moments away, offering a variety of lakeside dining options—from Mexican to Hawaiian to Chinese. In under 10 minutes, you can be at Bridgeport Village, home to an IMAX theater, Apple, Barnes & Noble, Crate & Barrel, REI, Whole Foods, Peet’s Coffee, & countless restaurants. Close to Legacy Meridian Hospital too.
Boones Ferry or Martinazzi
Dwelling Type: Residential
Subdivision: TUALATIN VILLAGE CONDO
Year Built: 1980, County: US
Boones Ferry or Martinazzi
Listing is courtesy of Premiere Property Group, LLC
Sign in to your account to continue