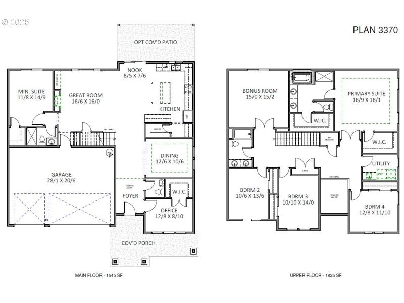
Experience the epitome of luxury living on green space in this stunning 3370 square foot home in Ramble Creek, a beautiful new community with a large park as the center of the community. With 5 bedrooms and 3.5 bathrooms, plus an office, this awe-inspiring residence offers ample space for entertainment and relaxation. Step inside and be greeted by a vaulted foyer that leads to a dedicated den - perfect for a home office. As you explore further, you'll discover a formal dining room, perfect for hosting dinner parties and special occasions. A gourmet kitchen comes complete with a gas cooktop, sleek quartz countertops, a large center island, alder cabinets with soft close drawers, under cabinet lighting and ample storage space. A comfortable main level mini suite waits for guests or extended family members. Upstairs you'll find a spacious bonus room, three secondary bedrooms and a primary suite with two walk-in closets. Enjoy a 3-car garage providing ample storage, and a large, covered deck to enjoy your backyard. Our Sales Office is located at 4519 NE 183rd St, Vancouver WA, open daily 10-5. Sample photos from prior homes, actual home finishes and colors will vary. Estimated completion in May/June 2026, still time to attend a design center appointment and personalize this home!
Model Home: 4519 NE 183rd St. Vancouver, WA 98686
Dwelling Type: Residential
Subdivision: RAMBLE CREEK
Year Built: 2025, County: US
Model Home: 4519 NE 183rd St. Vancouver, WA 98686
Listing is courtesy of Holt Homes Realty, LLC
Sign in to your account to continue