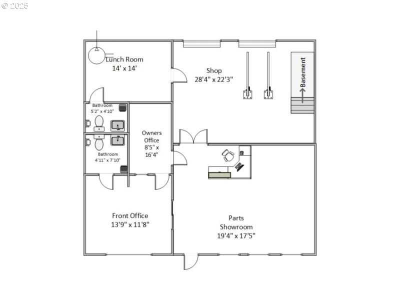
Turnkey Auto Dealership, Equipment Rental, or Owner-User on a 0.56-acre site on high-traffic NE Burnside "Auto Row". Featuring 135’ of frontage and rare DCL zoning that explicitly PERMITS Outdoor Commercial Sales (Auto/Trailer/Equipment) and Drive-Throughs by right—a unicorn designation in Gresham. High traffic count, 2025 traffic count at 25,938. The site is turnkey: fully paved, fenced, and features an easy to reconfigure building- perfect for a showroom and sales offices. Keep your capital for inventory with SBA Financing eligibility. This property offers options! There is potential to build a FOOD CART POD: Projecting a 9.1% Cap Rate for a high-density cart hub/taproom. The renovated building is an ideal commissary or bar shell. Or operate with a PASSIVE NNN: Secure a ~8.0% Pro-Forma Cap Rate on a standard NNN retail or dealership lease. REDEVELOPMENT: Opportunity Zone location with zero front setbacks allowed for future high-density mixed-use (up to 60 units/acre). Don't pay your landlord's mortgage—own this Opportunity Zone asset today. Buyer to verify all uses with City. Current business is relocating.
135 feet of Burnside Footage at Burnside and Cleveland
Dwelling Type: CommercialSale
Subdivision: N/A
Year Built: 1987, County: US
135 feet of Burnside Footage at Burnside and Cleveland
Listing is courtesy of Keller Williams PDX Central
Sign in to your account to continue