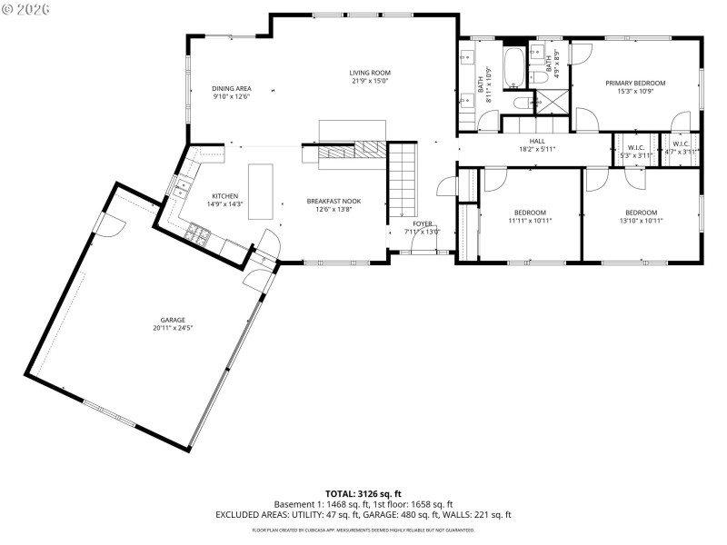
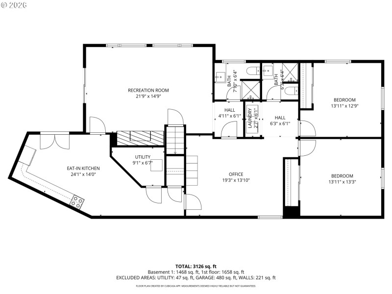
A rare opportunity to own an authentic mid-century modern home in Vancouver’s highly coveted South Cliff neighborhood. Built in 1957 and offering 3,379 square feet, this 5-bedroom, 4-bath residence blends iconic architectural character with generous living spaces designed for both entertaining and everyday comfort. Timeless mid-century design elements shine throughout, including clean lines, expansive windows, and hardwood floors. The spacious floor plan offers multiple living areas, large bedrooms, and flexible spaces ideal for home offices, and multigenerational living with it's second kitchen on the bottom floor. Set in a peaceful, established neighborhood known for its character, mature landscaping, and large lot sizes. Proximity to downtown Vancouver is a bonus with it's great waterfront amenities, parks, and top commuter routes. This is a truly special opportunity to own a distinctive architectural home in one of Vancouver’s most desirable enclaves- don’t miss out.
From Mill Plain go North on Manzanita. House is on the right
Dwelling Type: Residential
Subdivision: SOUTHCLIFF
Year Built: 1957, County: US
From Mill Plain go North on Manzanita. House is on the right
Listing is courtesy of Compass
Sign in to your account to continue