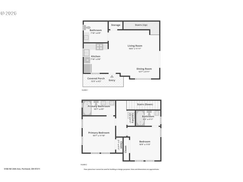
Located in the heart of NE Portland’s iconic Alberta neighborhood, this newer home blends elevated design with modern architecture just one block from Alberta Street’s shops, dining, and energy. High ceilings and expansive windows flood the home with natural light, creating a bright and open feel throughout the spacious, thoughtfully designed floorplan. The main level features a massive living room ideal for both everyday living and entertaining, paired with durable and stylish LVP flooring, sleek modern fixtures, and curated lighting throughout. The kitchen showcases stainless steel appliances, contemporary finishes, and clean-lined design that complements the home’s modern aesthetic. A covered front porch and private side patio extend the living space outdoors. Upstairs, a highly desirable dual-primary layout offers two generous primary suites—each with its own ensuite bathroom—providing exceptional flexibility. A convenient upstairs laundry area adds everyday ease and efficiency. With an abundance of natural light in every room, this home delivers modern comfort, thoughtful design, and an unbeatable location just steps from everything Alberta has to offer. Come see it for yourself! Home Energy Score = 9. HES Report at https://us.greenbuildingregistry.com/green-homes/OR10244418
99-E, E on NE Killingsworth, S on NE 24th Ave
Dwelling Type: Residential
Subdivision: CONCORDIA / ALBERTA ARTS
Year Built: 2023, County: US
99-E, E on NE Killingsworth, S on NE 24th Ave
Listing is courtesy of Reger Homes, LLC
Sign in to your account to continue