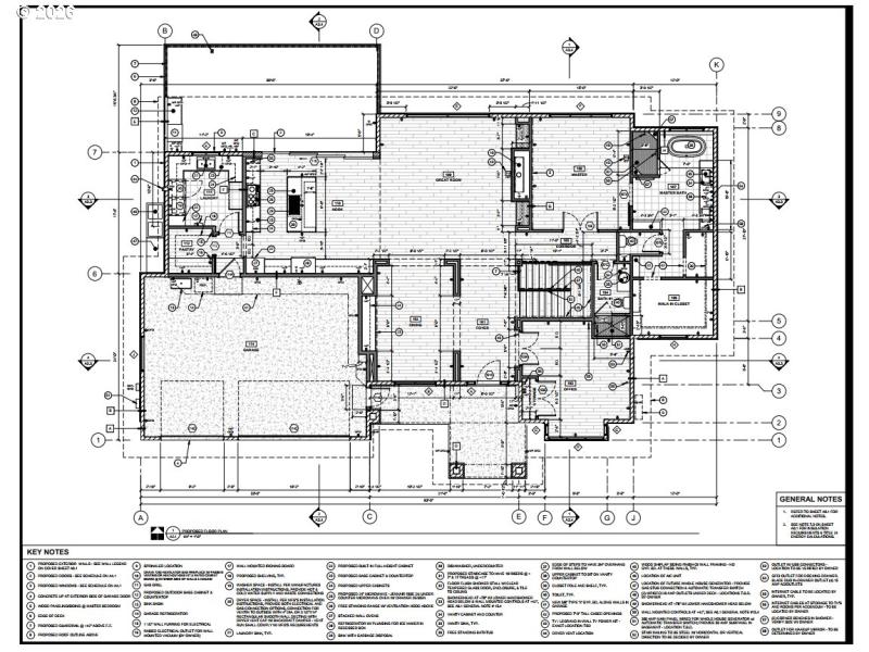
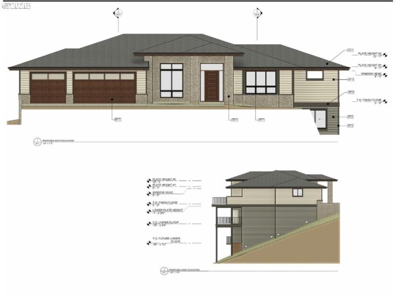
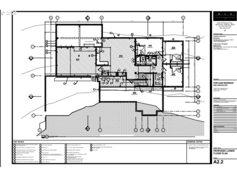
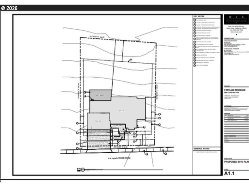
Custom Luxury Awaits in the Prestigious Gated Altamont Neighborhood of Happy Valley. Located in the highly sought-after Altamont community. Home to Street of Dreams showcases in 1999, 2008, and select homes in 2014. This .35-acre vacant view lot offers a perfect canvas to design your dream estate or build the previously HOA-approved Modern Prairie home plans featured in the photos. Enjoy sweeping Cascade Mountain views, including Mt. St. Helens and Mt. Adams. The sloped design is ideal for daylight or lower-level living with potential for a basement, maximizing panoramic views from main living areas and future decks.All utilities—water, sewer, and electricity are available, ready for your builder to get started. The hillside orientation works with the natural terrain, creating a more cost-effective construction approach by minimizing excavation and complex foundation work. The Modern Prairie design incorporates manufactured roof trusses to help manage construction costs. The lower floor is efficiently integrated within the cripple wall space, expanding usable square footage without adding significant structural expense. Retaining walls have been minimized, located primarily around the garage and front entry, aligning with the home’s placement and planned landscape grading to reduce site development costs. The primary living level features a spacious kitchen, dining area, great room, laundry, primary suite, and three-car garage, perfect for convenient main-level living while leaving flexibility for an expanded lower level.Enjoy the best of Happy Valley with easy access to I-205, top-rated schools, shopping, and dining, all just minutes away. This is your opportunity to create a custom luxury estate with unparalleled views and thoughtful design in one of Happy Valley’s premier gated neighborhoods. Bring us an offer!
Johnson Creek Blvd, Left on Highgate, Rd on Quail Ridge thru gate
Dwelling Type: Land
Subdivision: ALTAMONT
Year Built: N/A, County: US
Johnson Creek Blvd, Left on Highgate, Rd on Quail Ridge thru gate
Listing is courtesy of Premiere Property Group, LLC
Sign in to your account to continue