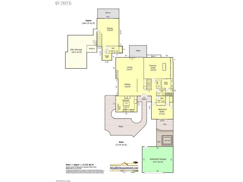
Quality-built home ideally set on the Charbonneau golf course, offering a rare combination of privacy and serene fairway views. An expansive covered front patio with water feature creates a perfect space for entertaining or quiet relaxation. Inside, generous living spaces and a vaulted living room deliver a light, open feel. The main-level primary suite adds comfort and convenience, while an upstairs bonus room with full bath and walk-in closet offers flexible use as a guest suite, office, or gym. Enjoy a resort-style community with walking paths, community center, pool and gym. Optional private golf, tennis, pickleball and boat/RV storage memberships available. Additional 615 sqft of unfinished attic space not included in sqft.
French Prairie to SW Old Farm Rd to Arbor Glen Ct
Dwelling Type: Residential
Subdivision: N/A
Year Built: 1981, County: US
French Prairie to SW Old Farm Rd to Arbor Glen Ct
Listing is courtesy of Windermere Realty Trust
Sign in to your account to continue