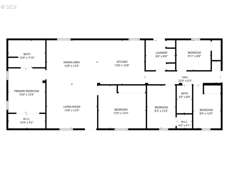
Rare opportunity in Estacada! This fully remodeled manufactured home on its own land offers an impressive 5 bedrooms, 2 bathrooms, and 1,782 sqft of open-concept living. The spacious primary suite is privately located opposite the other bedrooms and features a massive bath with dual sinks. Enjoy a kitchen loaded with cabinetry and a large center island, perfect for gathering and entertaining. The 4 additional bedrooms offer plenty of opportunity for an office, guest bedrooms, home gym, or room to grow for a family. Home also offers a big laundry area off of the kitchen & a unique 3-way entry for added convenience in/out of the home. The fully fenced yard adds privacy, the large storage shed offers plenty of extra room for storage. Schools, shopping, and restaurants are all within walking distance - come see this rare find for yourself!
Main st. left on 2nd slight right on Wade
Dwelling Type: Residential
Subdivision: N/A
Year Built: 1997, County: US
Main st. left on 2nd slight right on Wade
Listing is courtesy of Keller Williams Realty Portland Premiere
Sign in to your account to continue