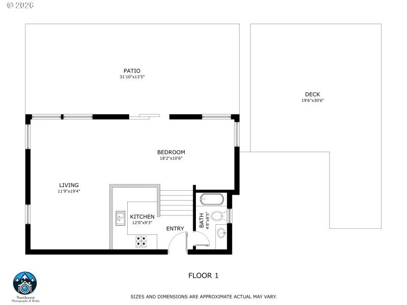
Secluded rural fixer opportunity on 35 acres of merchantable timber with expansive views. The existing home features a vaulted living area, simple studio layout, and covered deck overlooking the surrounding forested landscape, but will require significant rehabilitation. Well and septic systems are currently will require repairs in order to properly function and the property is not considered habitable in its present condition. Ideal for investors, contractors, or experienced DIY buyers looking for a project property, recreation retreat, or long-term land hold with improvement potential. This property has a strong foundation for future use, subject to buyer due diligence.
Lorane Hwy to the end of Sutherlin Ln
Dwelling Type: Residential
Subdivision: N/A
Year Built: 1996, County: US
Lorane Hwy to the end of Sutherlin Ln
Listing is courtesy of Hearthstone Real Estate
Sign in to your account to continue