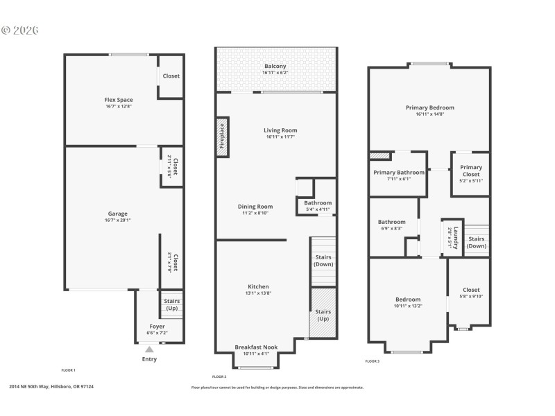
Located in the heart of Hillsboro, this townhome offers move-in ready comfort with easy access to everything the area has to offer. The thoughtful layout features expansive windows overlooking a green space, a bright and functional floor plan with tall ceilings throughout, and the benefit of a well-managed HOA. The living room is filled with natural light and centered around a cozy gas fireplace. The kitchen features granite countertops, generous storage, and plenty of space for entertaining. Upstairs, the primary suite impresses with vaulted ceilings, a walk-in closet, and a beautifully remodeled bathroom. Secondary bedrooms are spacious and offer ample storage. The garage is oversized with plenty of additional storage space. The third bedroom is located next to the garage and is ideal as a bonus space, home office, or a comfortable retreat for out-of-town guests. Step outside to a peaceful, oversized deck with a gas hookup—perfect for relaxing or gathering with friends.Recent updates include freshly painted exteriors, a new roof and gutters, plus a new refrigerator, updated blinds, and a newer water heater. Conveniently located near Orenco Station, Intel, the MAX, restaurants, shopping, Highway 26, and the Hillsboro Library, this home is perfectly positioned to enjoy the best of the neighborhood. [Home Energy Score = 8. HES Report at https://rpt.greenbuildingregistry.com/hes/OR10241772]
Shute Rd or Brookwood Parkway to NE Airport Rd to NE 50th Way
Dwelling Type: Residential
Subdivision: N/A
Year Built: 2001, County: US
Shute Rd or Brookwood Parkway to NE Airport Rd to NE 50th Way
Listing is courtesy of The Agency Portland
Sign in to your account to continue