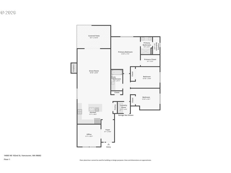
Open house SUNDAY 12-2pm. Single-Level Craftsman + Office | 1,664 Sq FtThis well-maintained 2015-built Craftsman home offers comfortable one-level living with 3 bedrooms plus a dedicated office across 1,664 square feet. The open-concept kitchen and dining area feature granite countertops, a large island, gas appliances, and generous pantry storage, creating a great space for both everyday living and entertaining.9-foot ceilings enhance the open feel throughout the home. All kitchen appliances, washer, and dryer are included, making this home truly move-in ready.Step outside to enjoy a fully fenced backyard with sprinklers, garden shed, and a private hot tub included. The HOA maintains the front lawn, simplifying exterior upkeep. Built with durable HardiPlank siding and priced below tax assessed value, this home offers strong value in today’s market.
I-205, E - Padden Parkway, N - 137th, E - 99th, N - 142nd
Dwelling Type: Residential
Subdivision: N/A
Year Built: 2014, County: US
I-205, E - Padden Parkway, N - 137th, E - 99th, N - 142nd
Listing is courtesy of Premiere Property Group LLC
Sign in to your account to continue