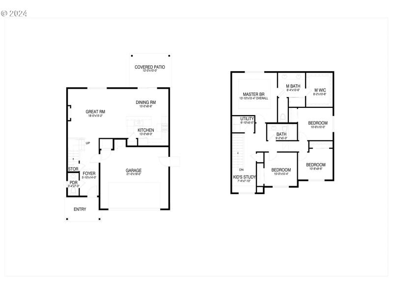
New Chad E Davis construction home.2 Story 4br home in Great location in Wine country! 9ft main floor ceilings with Great room and fireplace. Well Appointed kitchen with quartz countertops, ss appliances and full tiled back splash. Primary suite with walk in closet and full bath. Fully Fenced and landscaped. Taxes TBD.RV PARKING!
Main St Then S. on Elm.
Dwelling Type: Residential
Subdivision: YAMHILL PARK MEADOWS
Year Built: 2025, County: US
Main St Then S. on Elm.
Listing is courtesy of Berkshire Hathaway HomeServices NW Real Estate
Sign in to your account to continue