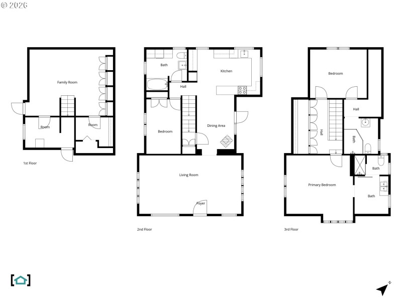
Beautifully updated two-story farmhouse with an updated basement, ideally situated on the desirable eastside of Hood River Valley, offering stunning Double Mountain and sweeping valley views. This 3-bedroom, 3-bath home blends modern upgrades with classic country charm in a peaceful rural setting. The remodeled kitchen features new cabinetry, quartz countertops, and updated appliances including an induction stove and dishwasher. Heated tile flooring in both the kitchen and breakfast nook creates a warm, inviting space for everyday living and entertaining. Upstairs, both bathrooms also feature heated tile flooring for added comfort. The basement was newly refinished in 2024 and includes new heaters installed at the time of completion, creating flexible living space with year-round comfort. An additional new heater was installed in the laundry room/bathroom in 2024 as well. All window coverings throughout the home were replaced in 2022. Outside, enjoy East Fork’s irrigation, an enclosed yard, and a detached one-car garage. Surrounded by natural beauty, this property offers the ideal combination of energy efficiency, thoughtful updates, and serene country living in one of Hood River Valley’s most sought-after locations.
Head South on OR HWY 35, turn left onto Fir Mountain Rd, Turn right onto Thomsen Rd, will be on left
Dwelling Type: Residential
Subdivision: N/A
Year Built: 1927, County: US
Head South on OR HWY 35, turn left onto Fir Mountain Rd, Turn right onto Thomsen Rd, will be on left
Listing is courtesy of Don Nunamaker
Sign in to your account to continue