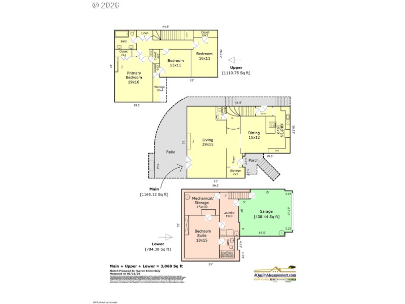
Open House Sat 3/21 and Sun 3/22 1-3pm. Nestled in the serene Northwest hills, this stunning English cottage is a true gem. Presenting breathtaking views and walkable distance to the heart of the city, you will enjoy privacy and accessibility. Step inside to newly refinished hardwood floors that add warmth and elegance to the living space. This home marries vintage aesthetics with modern upgrades, featuring glass doorknobs, lead-cut glass windows and exquisite light fixtures. The entertainer's kitchen comes fully equipped with stainless steel appliances, spacious countertops, an inviting island for casual seating and a built-in desk for added functionality. This well maintained home has undergone several upgrades for your peace of mind. Enjoy the recent updates: 2026-2018, refinished hardwoods, leaf guard gutter system, newer water sewer and gas lines, newer carpet and interior paint. 2017-2006: Foundation underpinning with piers by Ramjack, structural engineering and geotech consulting, roof replacement, attic insulation, custom blinds in bedrooms, A/C heat pump for second floor, renovated kitchen, laundry room, family room or fourth bedroom with legal egress. Relax in your easy maintenance patio showcasing old-world charm, complete with a cozy wood-burning fireplace, perfect for outdoor extended living. The rare two car garage offers additional storage and convenience in the city. This enchanting cottage adorned with charm and smart modern updates, presents a truly incredible value. Don't miss this magical and timeless gem just a stone's throw from the city! [Home Energy Score = 4. HES Report at https://rpt.greenbuildingregistry.com/hes/OR10099864]
From NW Lovejoy St, W on NW Cornell Rd to Property
Dwelling Type: Residential
Subdivision: N/A
Year Built: 1929, County: US
From NW Lovejoy St, W on NW Cornell Rd to Property
Listing is courtesy of Keller Williams Realty Professionals
Sign in to your account to continue