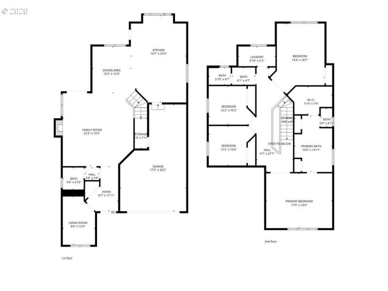
Immaculate and move in ready, this beautifully maintained home offers an ideal blend of space, light, and functionality. The open concept layout is filled with natural light and features a spacious living area with expansive windows, creating a warm and inviting atmosphere throughout.The well appointed kitchen is perfect for both everyday living and entertaining, complemented by a versatile main level office or den to suit a variety of needs. Upstairs, the generous primary suite provides a relaxing retreat with a soaking tub, walk-in shower, and ample space. Three additional rooms offer flexibility, including an oversized room ideal for a bonus space, media room, or additional bedroom. Convenient upstairs laundry enhances everyday ease.Recent updates include a newer roof, freshly painted exterior, and stunning epoxy floors just completed. Step outside to enjoy the private backyard oasis. perfect for entertaining, relaxing, or enjoying outdoor living.Meticulously cared for and truly turnkey, this home is located in a highly desirable area close to amenities, shopping, and commuter routes. A must see property that combines comfort, style, and practicality.
N on 172nd Ave, Left on 6th St, Left on 167th Ave
Dwelling Type: Residential
Subdivision: N/A
Year Built: 2005, County: US
N on 172nd Ave, Left on 6th St, Left on 167th Ave
Listing is courtesy of Harcourts Lifestyle Realty
Sign in to your account to continue