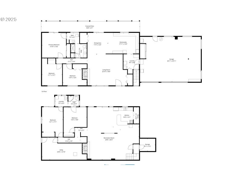
Discover this inviting 3,500± sq. ft. daylight rambler on 1 acre in the scenic Doty area of Lewis County, offering year-round creek frontage and the soothing sound of water just beyond your deck. With approximately 1,780 sq. ft. on each level, this home blends classic character with thoughtful updates, flexible design, and potential for multi-generational or income-producing living. The main floor features 3 bedrooms and 1.5 baths, a spacious kitchen with abundant cabinetry—ready for refinishing if you desire a new look—and a large dining area that opens to a covered, waterproofed deck overlooking the creek. Sliding doors from both the dining room and the primary suite provide easy outdoor access. Details such as bath fans on timers, dual-head showers, and wider doors for accessibility enhance comfort and function. Two wood-burning fireplaces—one on each level—add warmth and charm, while a heat pump efficiently provides heating and cooling throughout. The fully finished daylight basement offers generous space for guests, recreation, or separate living quarters with its own entrance, presenting excellent potential for added income, extended family, or private retreat use. A new 80-gallon hybrid hot water tank and ongoing updates contribute to comfort and efficiency.Outside, enjoy rustic landscaping with rhododendrons, fruit trees, and a garden area that invites you to create your own vision. The property’s location along a county-maintained road provides convenient access while still offering views of the creek and the wooded hillside beyond. Close proximity to Rainbow Falls State Park and the Willapa Trail, this property offers a beautiful balance of space, versatility, and natural charm—ideal for those seeking room to live, work, and thrive in a setting that connects everyday life with the outdoors.
Head West off exit 77, R on Stevens Rd, left on Elk Creek, home is on the left
Dwelling Type: Residential
Subdivision: N/A
Year Built: 1969, County: US
Head West off exit 77, R on Stevens Rd, left on Elk Creek, home is on the left
Listing is courtesy of eXp Realty LLC
Sign in to your account to continue