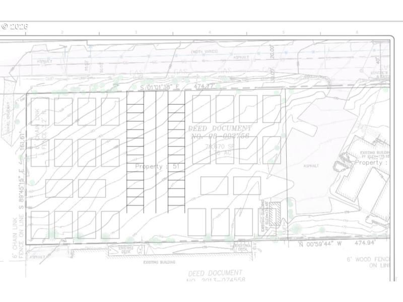
Picture the above Homes Built on this High Density 1.03 Acre. Up to 32 units/acre in Milwaukie and perfect for a rental community or sales. The scope of different products allowed on this high-density parcel is amazing. Milwaukie is Great place to build.
SE King Rd near SE 43rd Ave
Dwelling Type: Land
Subdivision: N/A
Year Built: N/A, County: US
SE King Rd near SE 43rd Ave
Listing is courtesy of Premiere Property Group, LLC
Sign in to your account to continue