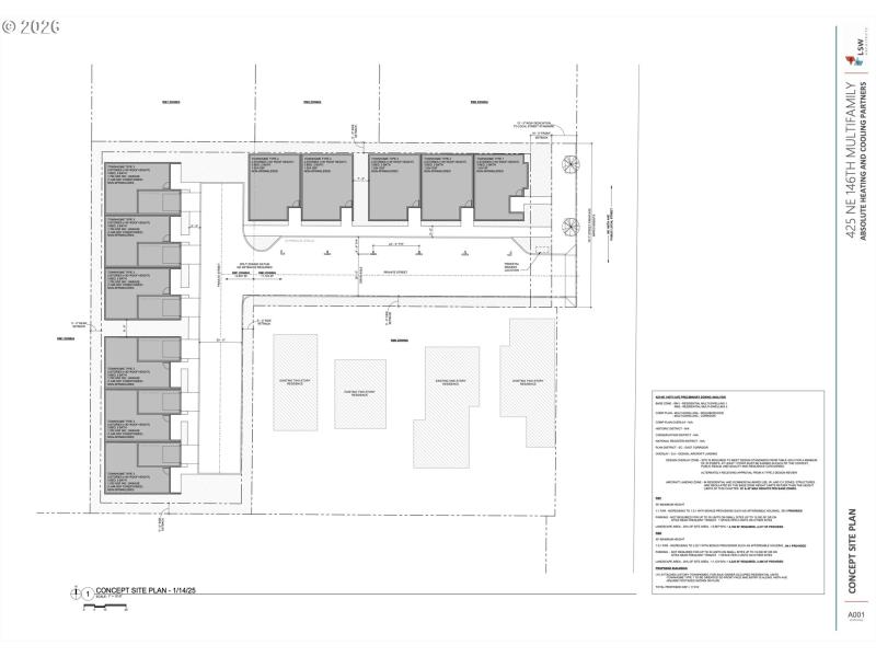
Prime development opportunity in NE Portland with strong infill potential. This property is being offered as a land value/development play with a preliminary fit test suggesting the potential for a 14-unit townhome project (8 smaller units and 6 larger units). Ideal for builders or investors looking for their next infill project in a growing area with strong resale demand.The existing structure on site is considered functionally obsolete and the property is best suited for redevelopment or rehab. Preliminary architectural concepts and fit test available for review to help illustrate the potential vision for the site. Buyer to perform all due diligence regarding zoning, density, utilities, and development feasibility.Conveniently located with access to major commuter routes, shopping, and amenities, this site presents a compelling opportunity for a developer to capitalize on new construction demand in the Portland market. Rare chance to acquire a project-ready site where much of the initial visioning work has already been completed. Bring your builder, investor, or development team — opportunities like this are limited.
NE 146th & Glisan
Dwelling Type: Land
Subdivision: N/A
Year Built: N/A, County: US
NE 146th & Glisan
Listing is courtesy of Handris Realty Co.
Sign in to your account to continue