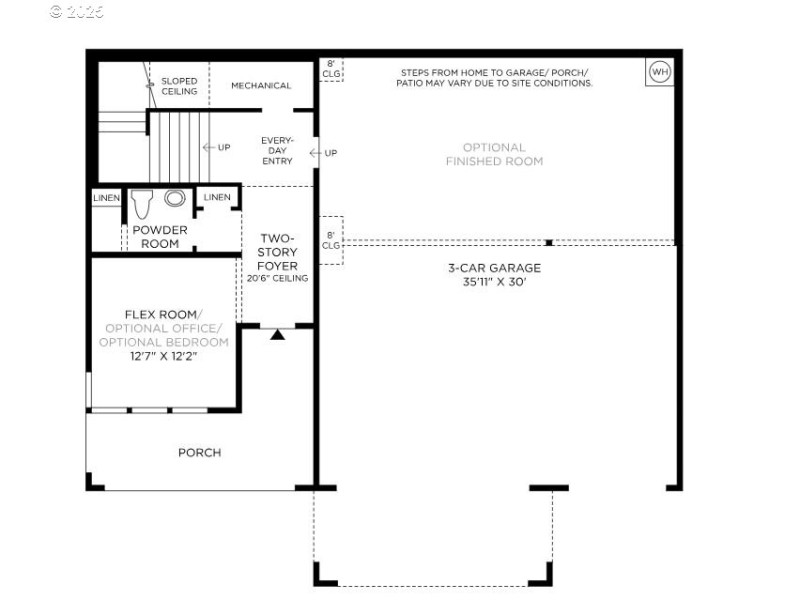
Open House Saturday 28th 11 am to 1 pm - Final home available by builder in the neighborhood. Once this homesite is secured, there will be no more new construction opportunities on Fir Loop. Perched at the summit of Woodburn Hill, this exceptional property offers something increasingly rare in today’s market: a generously sized, usable backyard with meaningful space between neighbors, all within the highly acclaimed Camas School District. Thoughtfully designed across three spacious levels, this home blends flexibility with elevated living. The entry level features a remarkable 36-foot-deep, side-by-side 3-car garage, a versatile flex room ideal for a home office, gym, or hobby space, and a convenient powder bath. Upstairs, the main living level is light-filled and expansive, with windows on all four sides. The open-concept great room, kitchen, and dining area create effortless flow for entertaining. A dramatic 12-foot multi-stack slider opens to a covered rear patio and expansive backyard, seamlessly blending indoor and outdoor living. A main-level bedroom and full bath provide ideal space for guests or multigenerational living. The top floor offers four additional bedrooms, including a stunning primary suite positioned to capture Mount Hood views. The spa-inspired five-piece ensuite and oversized walk-in closet create a true retreat. One secondary bedroom enjoys its own private bath, while two others share a hall bath with dual vanities. A well-appointed laundry room with built-in cabinetry and sink completes the upper level. From this vantage point, enjoy peek-a-boo views of the Columbia River and Mount Jefferson as well. Location truly sets this home apart. You are minutes to Downtown Camas and Washougal, convenient to Vancouver and Portland, and just a short drive to PDX Airport. Enjoy access to local parks, trails, dining, and the charm of small-town Camas while maintaining easy metropolitan connectivity. Opportunities like this are rare, and this is the last
West Hood Street and West Fir Loop
Dwelling Type: Residential
Subdivision: N/A
Year Built: 2025, County: US
West Hood Street and West Fir Loop
Listing is courtesy of Toll Brothers Real Estate Inc
Sign in to your account to continue