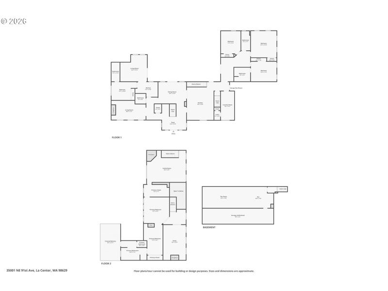
4.34 Flat Acres | Gated Lake Front Home | Main-Level ADU & Multi-Gen Living | 50x75. Shop. Welcome to your exclusive Pacific Northwest retreat in the gated community of Tri-Mountain Estates, where just 18 homes share exclusive access to a private stocked lake, scenic trails, and resort-style amenities. Set on 4.34 flat usable acres with peaceful lake and mountain views, this home is the closest residence to the lake within the community. The thoughtfully designed layout creates natural separation of space. The west wing features three main-level bedrooms and two bathrooms, ideal for family or guests. The east wing is dedicated to the main living and dining areas, opening directly to an oversized courtyard designed for entertaining with a hot tub and covered sauna area. A main-level ADU with private entrance and full bath provides excellent flexibility for multigenerational living, guests, or extended stays. Upstairs, the private primary retreat offers a coffee bar, propane fireplace, sitting area, and private deck with beautiful lake and mountain views. Major updates from 2023–2026 include an updated gourmet kitchen, air conditioning, double osmosis water purification system, refreshed deck, and a 50x75 sq ft shop perfect for hobbies, projects, or storage. Finished basement/wine cellar create a perfect rec room/media room. Residents enjoy deeded access to the private community lake for kayaking, fishing, and paddle boating, a 1.5-mile walking trail, tennis, pickleball and basketball courts, community barn storage, and gated privacy with low $245/month HOA dues. Ideally located for Pacific Northwest adventure—approximately one hour to the Columbia River Gorge, about 90 minutes to Mt. Hood, and under two hours to the Oregon and Washington beaches. Properties like this rarely come to market. Designed for the way people actually live, this is a home you truly have to experience in person. Schedule your private showing today.
La Center Exit - head East, R on 4th, turn into Lockwood, then 49th, then 349th turns into 91st Ave
Dwelling Type: Residential
Subdivision: TRI-MOUNTAIN ESTATES
Year Built: 1959, County: US
La Center Exit - head East, R on 4th, turn into Lockwood, then 49th, then 349th turns into 91st Ave
Listing is courtesy of Worth Clark Realty
Sign in to your account to continue