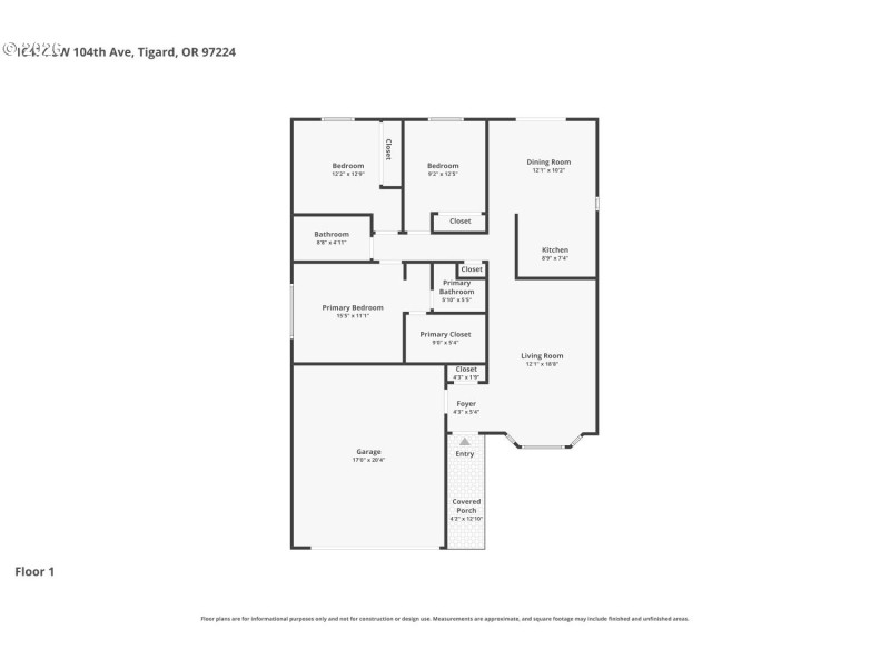
SWEAT EQUITY OPPORTUNITY! Unlock the potential in this solid starter home on a desirable corner lot, nestled in a quiet, established neighborhood in Tigard. The roof was replaced in 2017, though some cosmetic staining from prior leaks remains. A recent plumbing repair led to brand-new carpet and luxury vinyl plank flooring throughout.With interior and exterior paint, updated windows, a new deck, AC, and your personal design touches, this home is ready to shine. Sewer line repair is needed, but the price reflects a great opportunity to build equity and make it your own.Enjoy convenient access to nearby outdoor spaces, including Jurgens Park, Cook Park, and East Butte Heritage Park—perfect for recreation, trails, and enjoying the natural surroundings.
SW Durham Rd, South on 103rd or 108th to Kent to 104th
Dwelling Type: Residential
Subdivision: SWANSON'S GLEN
Year Built: 1989, County: US
SW Durham Rd, South on 103rd or 108th to Kent to 104th
Listing is courtesy of Soldera Properties, Inc
Sign in to your account to continue