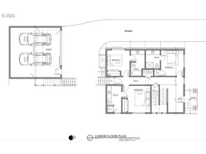
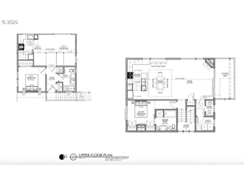
Come for the views, stay for the vibe! Brand new in the coveted coastal enclave of Cannon Beach, this stunning home blends elevated design with effortless indoor-outdoor living. With ocean and forest views, the bright, open-concept spaces are accented by custom finishes and designer-inspired details throughout, flowing seamlessly to the balcony – bringing the outdoors in. Each bedroom in the main home features a private ensuite, creating a luxe experience for owners and guests alike. A fully equipped detached ADU with its own entrance offers ultimate flexibility for hosting, rental income, or work-from-home living. Whether as a full-time residence or a coastal getaway, this home delivers modern coastal style and privacy, thoughtfully designed and crafted to be lived in and loved.
Hwy 101 N, exit right onto N Warren Beach Rd, Right on Hemlock, right on E Tanana Ave
Dwelling Type: Residential
Subdivision: N/A
Year Built: 2024, County: US
Hwy 101 N, exit right onto N Warren Beach Rd, Right on Hemlock, right on E Tanana Ave
Listing is courtesy of RE/MAX Coastal Advantage
Sign in to your account to continue