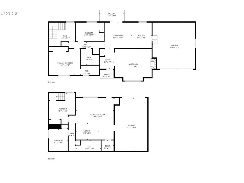
Amazing opportunity in desirable quiet Reedsport neighborhood. Peaceful views of horse pasture, forest and creek. Two separate living spaces, each with two bedrooms and separate laundry, kitchen, garages, etc. Tons of parking, including spot for your RV or boat. Main level has 2 bedrooms, 2 bathrooms and office space. Lower level with 2 bedrooms, 1 bath. Call to see it today!
Highway 101, W on 22nd st., S on Frontage, W on Ranch to address
Dwelling Type: Residential
Subdivision: N/A
Year Built: 1981, County: US
Highway 101, W on 22nd st., S on Frontage, W on Ranch to address
Listing is courtesy of Mal & Seitz Real Estate
Sign in to your account to continue