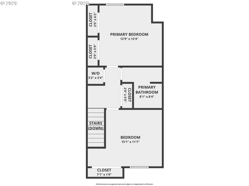
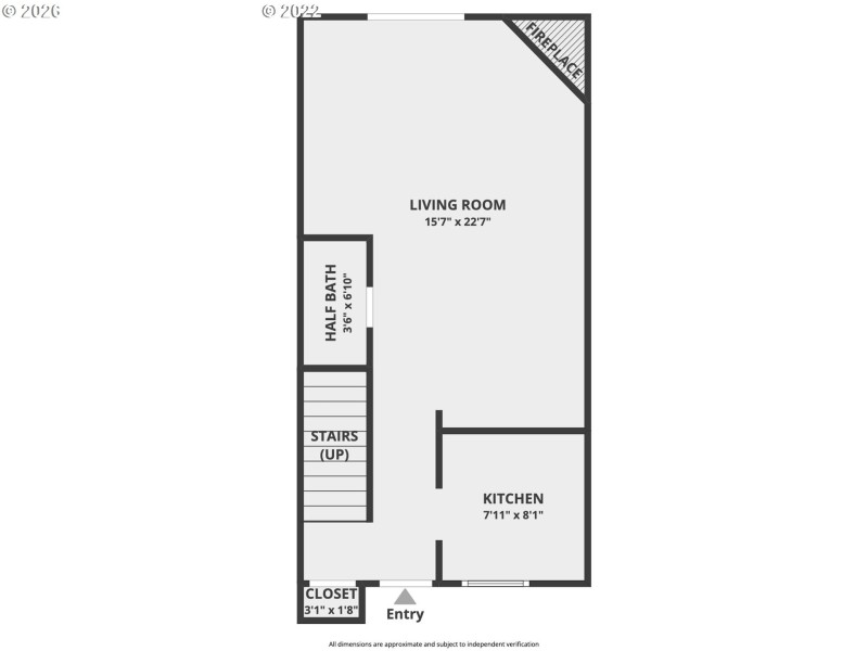
Welcome home to this a beautifully updated end unit townhome style condo in a quiet, tree-lined community offering comfort & convenience. Major exterior improvements are already complete, including new roof, siding, exterior paint, and rebuilt ext. stairs. A dedicated parking space sits directly in front of the unit for easy access.Inside, the main level features durable LVP flooring, fresh interior paint, and a bright living space with a wood-burning fireplace. The layout includes a dining area, eat-in bar, and a fully remodeled half bath on main. All appliances are included & a new water heater, Also offers newer: dishwasher,kitchen faucet & disposal. Carpet has been professionally cleaned. Upstairs offers two spacious bedrooms, primary with large double closest & both offer ceiling fans. Upper level full bathroom has been fully remodeled, and washer & dryer are included.Enjoy a fully fenced backyard with patio and ext. gate. ideal for pets, gardening, or relaxing plus a secure 6x3 storage unit. Community amenities include a pool, clubhouse (remodel coming soon), workout space, and additional laundry facilities. Seller is offering 3 months of HOA dues with an acceptable offer.Location is where this home truly shines. You’re just minutes from Mary S. Young Park and Memorial Park, where you’ll find trails, dog parks, splash pads, and open green space. Everyday conveniences are close by, including grocery stores, coffee shops, local dining, the library, and seasonal favorites like farmers markets, outdoor concerts, and art events. Commuters will appreciate quick access to I-5 and nearby transit options, making travel throughout the Portland metro area seamless.
E on Wilsonville RD N on Towncenter Loop R on Courtside
Dwelling Type: Residential
Subdivision: Boeckman
Year Built: 1980, County: US
E on Wilsonville RD N on Towncenter Loop R on Courtside
Listing is courtesy of MORE Realty
Sign in to your account to continue