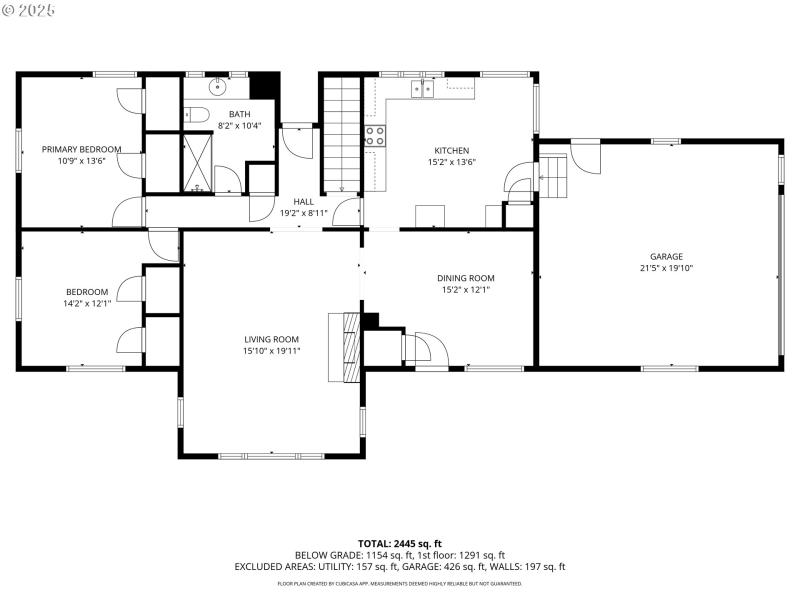
Additional Price Reduction – Really Exceptional Value – Seller must sell!This Mid-Century Modern home sits on a large corner lot and is ready for your updates, featuring coved ceilings and original hardwood floors.Much larger than it appears, the home offers 2,762 sq ft total, with 1,381 sq ft on each level, thanks to a full, usable, mostly finished basement. The 2+ bedrooms listed downstairs are NOT conforming. (Buyer will need to install window wells with larger windows to safely use as conforming bedrooms.) There is space to convert the half bath to a full bath, making the floor plan well-suited for multigenerational living or a potential ADU-style setup.Updates include a new roof, gutters, and furnace (2018), bathroom remodel (2023), and quality vinyl windows. This home offers flexibility, space, and value—priced accordingly and ready for a quick sale.
One block north of E Street, on the corner of 12th and F Streets
Dwelling Type: Residential
Subdivision: N/A
Year Built: 1950, County: US
One block north of E Street, on the corner of 12th and F Streets
Listing is courtesy of Leann Collins Real Estate Ser
Sign in to your account to continue