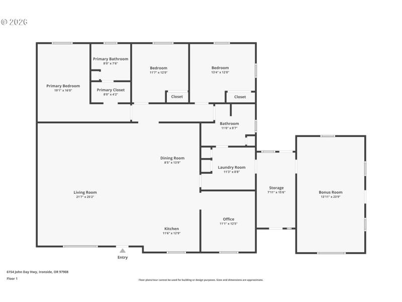
Here's your chance to own a unique piece of rural Oregon history. This expansive stick built home sprawls on over 6 acres of serene land in Ironside, Oregon. Enjoy an open floor plan with great views of Ironside Mountain from the large living room windows. The ductless heating and cooling system is sure to keep you cool in the summer and will accompany the pellet stove for those cozy winter days. The kitchen features all new smart appliances and a second oven. There is a large utility room that leads into a nice mud room. The garage has been fully finished and enclosed for added indoor space as well as a second washer and dryer hookup. This property includes the old store and the old post office. The post office has been converted into a functioning 2 bedroom apartment with its own utilities. Fully fenced and cross fenced with 4 acres of State water rights through a productive well.
From John Day, Hwy 26 W to Ironside. Home is on the Left
Dwelling Type: Residential
Subdivision: N/A
Year Built: 1991, County: US
From John Day, Hwy 26 W to Ironside. Home is on the Left
Listing is courtesy of Coldwell Banker Sun Country
Sign in to your account to continue