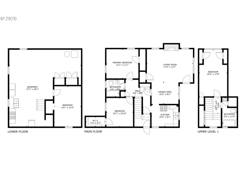
Open Tuesday 3/17 11am-1pm. Offered for the first time in generations, this 1947 Colonial Heights English has had only two owners, with the most recent caretaker calling it home for more than 70 years, and is ideally situated between Division and Hawthorne in one of Portland’s most coveted neighborhoods. From the moment you step inside, it is clear the home remains largely unchanged for decades, presenting a rare opportunity for cosmetic updating, restoration, or a thoughtful reimagining. The living room is anchored by a classic fireplace and generous picture window, while the now uncovered original hardwood floors have been protected beneath carpet for years. A cozy dining room flows into a charming, time capsule kitchen that invites the next owner to either lean fully into its vintage appeal or bring it into a new era. Two bedrooms and a full bath complete the main level, with a third bedroom and small bath upstairs, along with excellent attic kneewall storage. Downstairs, a full basement offers a bonus room, abundant storage, and real flexibility, and tells part of the home’s story, as the prior owner used the space extensively for cooking and sewing, making clothing for herself, family, and neighbors, along with drapes and linens, while keeping daily work and food aromas separate from the main living areas. The attached garage and side entrance provide convenience and low-maintenance aluminum siding adds long-term durability. The large, fully fenced backyard is highlighted by a beautiful Asian Pear tree, and allows ample space for outdoor activities. The front yard features mature landscaping with an amazing Japanese Maple planted more than 60 years ago. Just one block from Sewallcrest Park with a playground and off-leash dog area, and close to Safeway, Fred Meyer, and the vibrant shops and restaurants of Division and Hawthorne, this home offers exceptional potential in a highly desired neighborhood with outstanding amenities. As-is sale.
SE Hawthorne Blvd, South on SE 30th Ave, on the right
Dwelling Type: Residential
Subdivision: RICHMOND
Year Built: 1947, County: US
SE Hawthorne Blvd, South on SE 30th Ave, on the right
Listing is courtesy of Home Team Realty, LLC.
Sign in to your account to continue