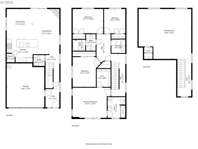
Experience the perfect blend of modern luxury and easy living in this stunning 2,701. Newberg home. Completed in 2023, this 4-bedroom, 2.5-bath home is perfect for someone desiring space and low maintenance. With an acceptable offer, all furniture and decorations (except furniture in bedroom on the NW corner, see picture 25) can be included in sale. Washer and dryer are included with a full price offer. The main level features a bright, open-concept floor plan. Enjoy a chef’s kitchen with quartz countertops, massive island and breakfast bar, stainless steel appliances, and walk-in pantry. High-end laminate flooring throughout the living area offers style and durability.Upstairs you'll find a vaulted primary suite complete with a private en-suite bath and walk-in closet, three more spacious bedrooms, and a convenient laundry room. The "wow" factor is the huge bonus room on the third floor — perfect for entertainment, home theater, gym, or creative studio. This move-in ready home features a low-maintenance yard, and puts you just minutes away from Newberg’s famous wineries, top-rated schools, and local parks.
OR-99W Rt.on NE Chehalem Dr, Rt. on NE North Valley Rd. ,Rt onto N Bruce Dr., L. on Barbaras
Dwelling Type: Residential
Subdivision: N/A
Year Built: 2023, County: US
OR-99W Rt.on NE Chehalem Dr, Rt. on NE North Valley Rd. ,Rt onto N Bruce Dr., L. on Barbaras
Listing is courtesy of Premiere Property Group, LLC
Sign in to your account to continue