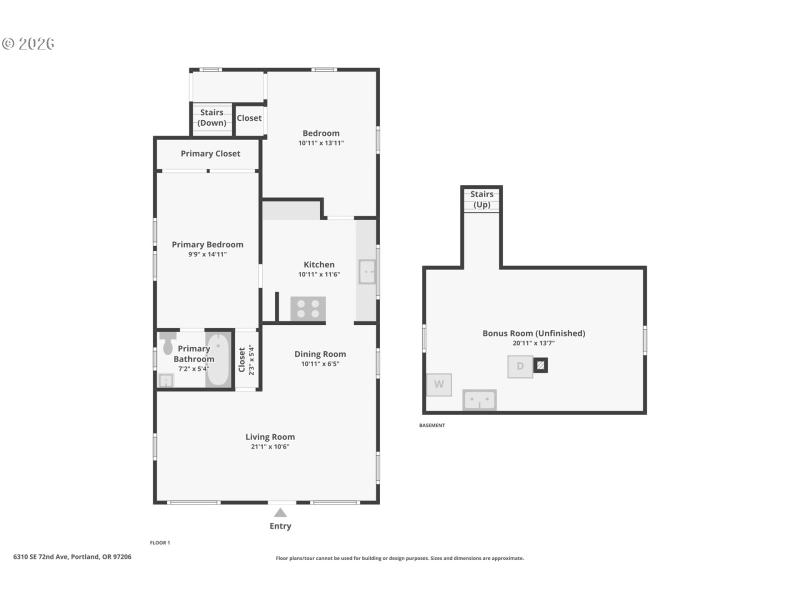
Charming 1920's single-level home perfectly situated in the vibrant Mt. Scott-Arleta/Brentwood-Darlington area. This well-maintained residence offers 2 bedrooms, 1 bath, and approximately 925 sq. ft. of comfortable living space with classic period appeal, hardwood underfoot and flexible room flow and 10 year old roof. The detached garage and private yard provide excellent outdoor space — ideal for gardening, entertaining, or simply soaking up sunshine in a peaceful setting. Bright and inviting throughout, the home features a thoughtful layout that flows from living room to kitchen with plenty of natural light. Mature landscaping and established plantings frame the property, giving a sense of privacy and neighborhood charm. Located just moments from favorite local amenities — enjoy quick access to shopping, dining, schools, and essential services while being tucked into a quieter residential street. Outdoor enthusiasts will appreciate being minutes from Mt. Scott Park & Community Center, with open green space, playgrounds and recreation options nearby. Several parks and natural areas including Brentwood Park and Harney Park offer additional room to picnic, play or stroll; trails and paths throughout the area are perfect for walking and biking, connecting you to Portland's broader parks network and community assets. A terrific opportunity to own in a well-loved Portland neighborhood with a strong sense of community and easy access to outdoor recreation. [Home Energy Score = 4. HES Report at https://rpt.greenbuildingregistry.com/hes/OR10245708]
S on SE 72nd, S of SE Tolman, N of SE Henry
Dwelling Type: Residential
Subdivision: MT SCOTT - ARLETA
Year Built: 1925, County: US
S on SE 72nd, S of SE Tolman, N of SE Henry
Listing is courtesy of Redfin
Sign in to your account to continue