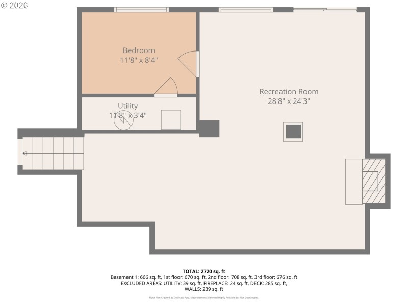
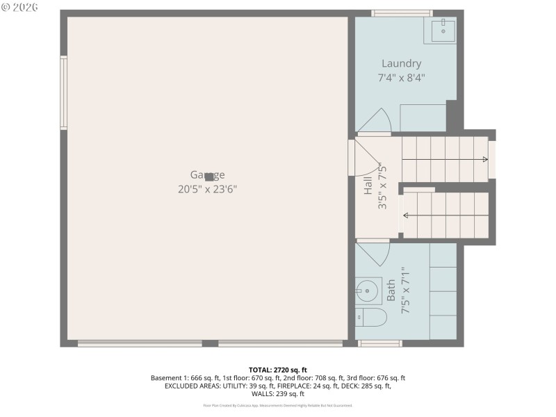
Wake up to sweeping valley views and unwind on the deck as the sun sets over South Salem.This beautifully remodeled 4-bedroom, 2.5-bath home blends thoughtful design with modern upgrades throughout. Inside you’ll find warm contemporary wide-plank luxury vinyl flooring, all-new electrical, and designer finishes that make the home feel fresh and elevated. The kitchen features quartz countertops, GE Café appliances, designer tile, and brand-new soft-close cabinetry with abundant storage.The spacious walkout basement offers flexible living space perfect for a second living area, game room, home gym, or homeschool setup—whatever fits your lifestyle best.The oversized laundry room includes a sink and a large counter landing space for the everyday items you don’t want cluttering your kitchen.Enjoy outdoor living with a covered patio downstairs and an expansive deck upstairs designed to capture the stunning valley views. Located in desirable South Salem with nearby shopping and dining.Highlights: • Stunning valley views• Fully remodeled interior• Wide plank luxury vinyl flooring in warm contemporary oak• Quartz countertops• GE Café appliances• Brand-new soft-close cabinetry• All new electrical• Walkout basement with flexible living space• Large laundry room with sink and folding counter• Covered patio + expansive view deck• Close to shopping and dining
Kuebler & Skyline
Dwelling Type: Residential
Subdivision: N/A
Year Built: 1973, County: US
Kuebler & Skyline
Listing is courtesy of Real Broker
Sign in to your account to continue