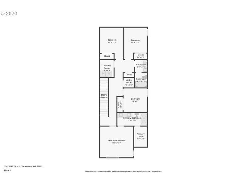
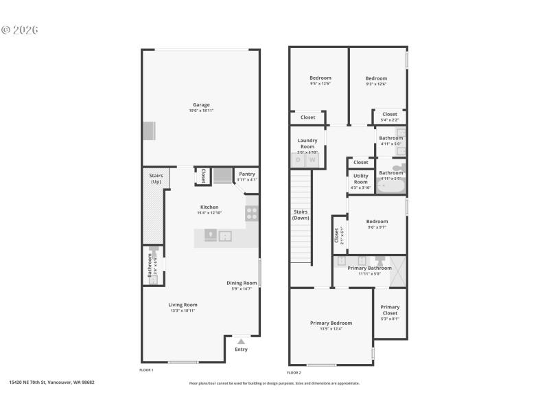
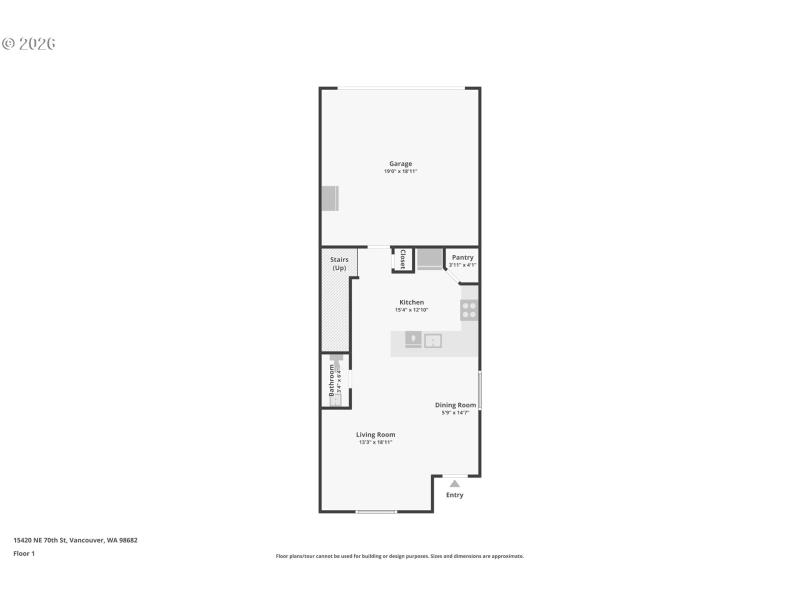
Make a great first impression with the open and spacious entertaining areas of this townhome. The huge kitchen is upgraded with stainless steel appliances, polished quartz countertops and 42-inch upper cabinets. Stylish plank flooring flows from the expansive great room to the large dining room and kitchen. Upstairs, relax in the private owner's retreat or one of the additional three bedrooms. A large secondary bathroom and laundry room are also located upstairs. Fenced front yard; spacious 2-car garage & additional parking.
fm Fourth Plain - N on NE 154th; R on NE 70th
Dwelling Type: Residential
Subdivision: 5TH PLAIN CREEK STATION
Year Built: 2022, County: US
fm Fourth Plain - N on NE 154th; R on NE 70th
Listing is courtesy of Realty Pro West, LLC
Sign in to your account to continue