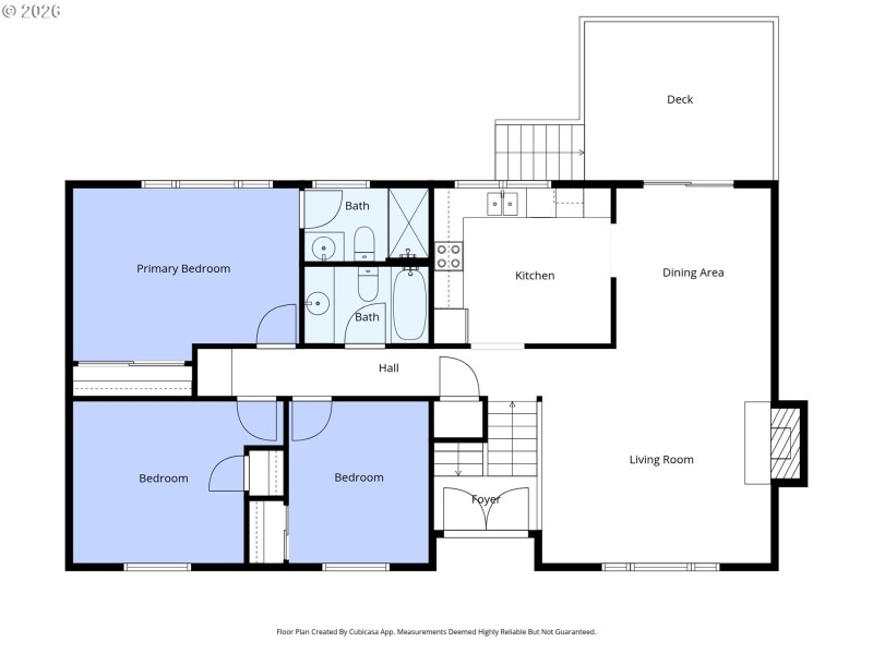
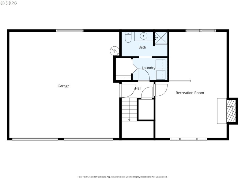
Space, flexibility, and multigenerational potential in Cascade Park! This 3 bedroom, 3 full bathroom home sits on a just under 1/4 acre corner lot. Offering a functional layout with flexible living space ideal for multigenerational living, guest quarters, or a home office. Light-filled main living areas connect to the kitchen and dining, creating an open-concept feel for everyday living and entertaining. Outside you'll find the second-story deck that overlooks a private backyard with mature landscaping. Located on a quiet cul-de-sac, low-traffic street with convenient access to shopping, dining, parks, and minutes to PDX Airport. This home offers space, versatility, and location. Schedule your private tour today!
Use GPS
Dwelling Type: Residential
Subdivision: CASCADE PARK
Year Built: 1977, County: US
Use GPS
Listing is courtesy of Real Broker LLC
Sign in to your account to continue