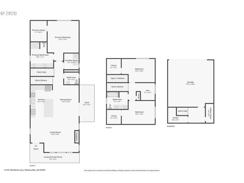
PRIMARY bedroom on the main floor. Well-maintained home in the desirable Villebois community with a highly sought after floor plan! This 3-bedroom, 2.5-bath residence offers an open-concept living, beautiful vaulted ceilings, dining, and kitchen area—perfect for everyday living and entertaining. The kitchen features a central island and ample storage. A versatile loft space adds flexibility for a home office, media room, or play area. All bedrooms have a walk in closet. The spacious primary suite is located on the main floor and includes a large bathroom for added comfort. Enjoy the convenience of a two-car garage. access to walking trails, parks, a community gym, pool pickle ball, volley ball sand court, and basketball. Close to the farmers market that runs spring through fall. Ideally located near the Wilsonville WES station for easy commuting. Lowest HOA in the community!
Boeckman to Villebois Dr, R on Berlin
Dwelling Type: Residential
Subdivision: N/A
Year Built: 2015, County: US
Boeckman to Villebois Dr, R on Berlin
Listing is courtesy of Redfin
Sign in to your account to continue